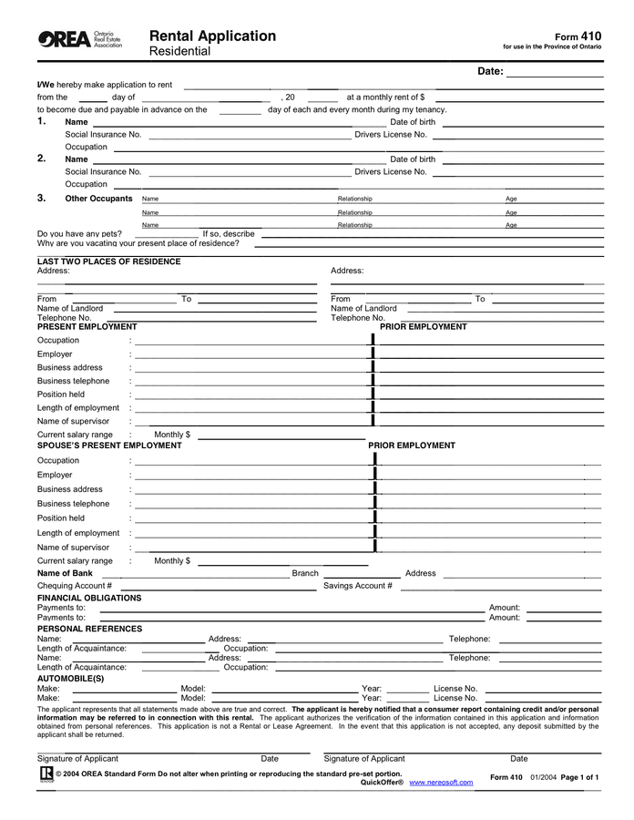
Rental Application Form Ontario 2018 Form 410 – A free lease application allows landlords to collect info from prospective renters, shop it, and assess it to help make well informed choices. On the web rental program kinds are available in different templates, and also the landlord can customize the web template to meet his certain needs. Just before renting out a home, property owners must conduct a track record review the candidate, both themselves or by using the services of backdrop-check organizations. Background record checks might include career documents, credit history record, and previous rental history. Depending on the scenario, referees may be needed. Rental Application Form Ontario 2018 Form 410.
Questions to ask a possible renter
When it comes to looking into a would-be tenant, there are various inquiries you should always question. The initial thing you want to do is verify referrals. They may be hiding something if they refuse. Also, it is worth noting that spoken contracts will not be legally binding. Furthermore, a person with bad persona can be prone to telling lies, so the best way to learn if they are a great renter would be to consult with a 3rd party.
Another question you ought to check with a potential tenant on a free rent form is whether the person has any earlier a bankruptcy proceeding record. A credit report will show if a person has filed for bankruptcy within the past seven years, so make sure to ask this question. Stay consistent together with the queries you may well ask. Ultimately, it’s a smart idea to check with no matter if a possible tenant has been arrested for a medicine or alcoholic drinks offense.
Fundamental info to include on a rental application
When creating a hire application, think about what is most related to you. The initial segment must have the applicant’s private data, which includes their label and street address. This is necessary to verify their contact and identity them if anything were to happen to them. If they are renting the property for a long term, it is important to know their rental history. The landlord will almost certainly would like to know how much time they have lived at each deal with and the way significantly they purchased the unit.
The landlord will should also know the kind of vehicle and pet the renter is going to be trying to keep. These details is effective to be sure the applicant’s dog will match the home. If they will be parking more than one vehicle, this information will be helpful later, likewise. This can help save the landlord the difficulty of dealing with a number of cars, so involve it in the hire software. However, tenants must understand what it means to rent a rental property.
Legitimate disclosures to produce with a rental software
As a landlord, you have a legal obligation to provide tenants with information regarding the rental property. These disclosures include the name and address of the person who can shell out rent payments, who pays the resources, as well as other information. You have to conform to express and native regulations concerning landlord renter disclosures. You must provide the disclosures required by law before signing a lease or entering into a rental agreement, regardless of the type of rental property you are renting.
When filling in a no cost hire application, it is important to make every one of the needed legal disclosures. The landlord should also status his / her accountability, that will discharge them in the ramifications of testing the applicant. In addition, landlords should explain why they can be rejecting the candidate. A higher credit rating of at least 620 is generally regarded as reputable by landlords. As a result, landlords need to state any conditions that could adversely impact the tenant’s credit rating.
Requirements for completing a hire app
A rental application form must contain a tenant’s contact information, including a social security number, if applicable. This data can be used for credit report checks, along with background record checks. It’s also encouraged to collect the applicant’s workplace info. By checking these details, landlords can verify if the applicant can afford the rent. Make sure to ask about the landlord’s policies relating to tenant security.
People need to have evidence of work. This could be by means of a newly released pay out stub or tax statements. Some landlords also call for clients’ W and contracts-2 kinds. Be sure to give correct info on these paperwork, as lacking even one can have the app unacceptible. Try submitting your application through NY Rent Own Sell if you’re looking for an apartment in New York City.





